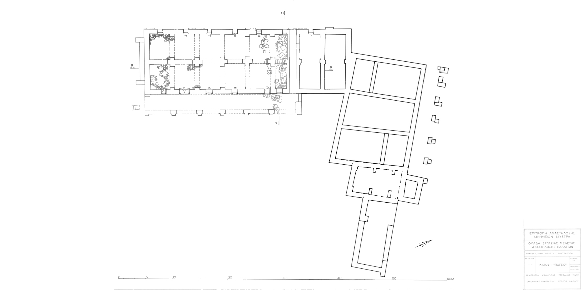
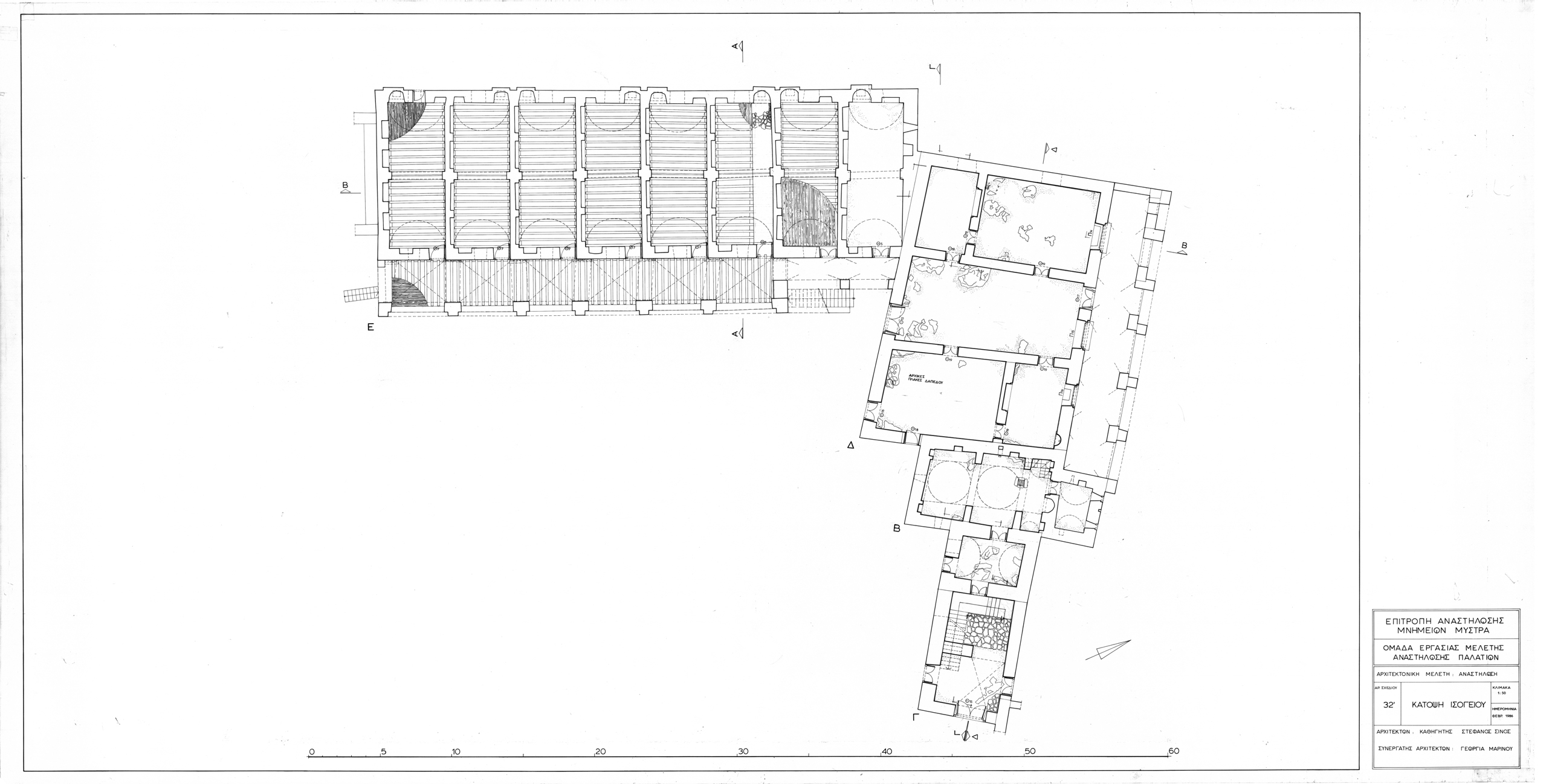
Το Παλάτι δεσπόζει στο πλάτωμα που διαμορφώνεται στην Άνω Χώρα του οικισμού. Συνίσταται από ένα σύμπλεγμα κτηρίων σε σχήμα Γ, η ανέγερση των οποίων ανάγεται σε διαφορετικές χρονικές περιόδους, από το β΄ μισό του 13ου έως τις αρχές του 15ου αιώνα, συμβαδίζοντας με τις συνεχώς αυξανόμενες απαιτήσεις του διοικητικού μηχανισμού του δεσποτάτου του Μορέως.

    Στο βορειοανατολικό άκρο του πλατώματος βρίσκεται διώροφο οικοδόμημα ορθογωνικής κάτοψης, το κτήριο Α, με πύργο προσκολλημένο στα βορειοδυτικά, κατεστραμμένο σήμερα κατά το μεγαλύτερο μέρος του. Στις όψεις του είναι εμφανείς δυτικές αρχιτεκτονικές μορφές, γεγονός που καθιστά πιθανή την ανέγερσή του από τους Φράγκους επικυρίαρχους, μεταξύ των ετών 1249-1262, χωρίς, ωστόσο, να αποκλείεται και μεταγενέστερη χρονολόγησή του, αμέσως μετά την παράδοση του κάστρου στους Βυζαντινούς και τη μετοίκηση στον λόφο των κατοίκων της μεσοβυζαντινής Λακεδαιμονίας.

    Στα τέλη του 13ου ή στις αρχές του 14ου αιώνα προστίθενται δύο ακόμα αυτόνομα διώροφα κτίσματα, που ακολουθούν κατασκευαστικά και μορφολογικά βυζαντινά πρότυπα, το κτήριο Β στα βορειοδυτικά του κτηρίου Α και σε μικρή απόσταση από αυτό, καθώς και το κτήριο Ζ σε μεγαλύτερη απόσταση στα νοτιοδυτικά.

    Η έλευση στον Μυστρά του δεσπότη Μανουήλ Καντακουζηνού και της συζύγου του Ισαβέλλας de Lusignan εισάγει νέα δεδομένα στη διοικητική δομή των βυζαντινών κτήσεων του Μοριά. Αυτοκρατορικός γόνος ο Μανουήλ, επιδιώκοντας ενδεχομένως τη δημιουργία μιας αυλής μικρογραφίας της αντίστοιχης αυτοκρατορικής στην Κωνσταντινούπολη, ανεγείρει το λεγόμενο κτήριο Δ ή πτέρυγα των Καντακουζηνών, το οποίο κτίζεται σε συνέχεια και ενσωματώνει ουσιαστικά το προγενέστερο κτήριο Β, με δυτικά μορφολογικά στοιχεία στα πλαίσια και τον διάκοσμο των θυρών και των παραθύρων. 

    Την τελική μορφή του λαμβάνει το Παλάτι στις αρχές του 15ου αιώνα με την προσθήκη μίας μεγάλης πτέρυγας κάθετα στο κτήριο των Καντακουζηνών, η ανέγερση της οποίας συνδέεται με τον αυτοκράτορα Μανουήλ Β΄ Παλαιολόγο. Το οικοδόμημα αυτό, γνωστό ως πτέρυγα των Παλαιολόγων, εξαίρεται μεταξύ των κτηρίων που συνθέτουν το ανακτορικό συγκρότημα, λόγω της κλίμακας και της διάπλασης των όψεών του. Κεντρική θέση μέσα στο πλήθος των δωματίων που διαμορφώνονται κατέχει η μεγαλοπρεπής «αίθουσα του θρόνου» στην ανώτερη στάθμη της πτέρυγας, ένας ενιαίος χώρος με εμβαδόν 380 τ.μ. περίπου. Την ίδια περίοδο η ανέγερση του κτηρίου Γ (κλιμακοστάσιο) μεταξύ των κτηρίων Α και Β εξασφαλίζει την ενοποίηση του συνόλου των κτισμάτων του ανακτορικού συγκροτήματος.